Lennard Road Medical Practice
Lennard Road Medical Centre
The NHS provides grant funding to enhance local GP surgeries, fulfilling a national requirement to maintain high standards and offer improved services to the surrounding communities. In this particular project situated in the London Borough of Croydon, there is a pressing need to expand existing surgeries and cater to the growing demands of the local population.
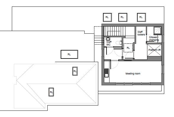
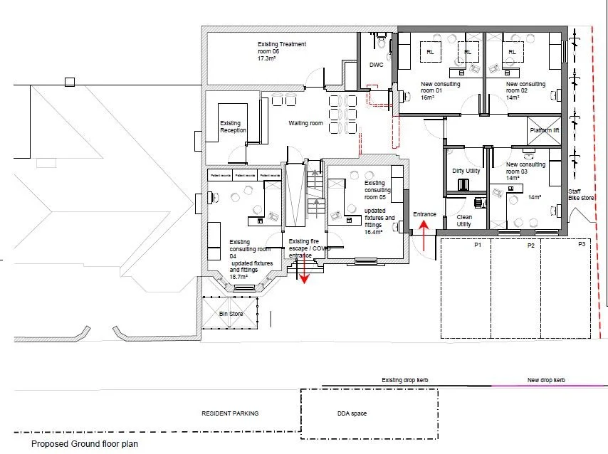
Croydon has experienced a significant surge in residential developments since 2016, necessitating an increase in NHS GP practices. To address this need, Alexander Laird has been appointed to undertake a series of enhancements, including a new side extension and internal alterations to the existing Medical Practice. These enhancements involve the creation of five additional clinical rooms, installation of a platform lift to ensure full accessibility, construction of utility rooms, and the establishment of a staff area on the top floor. The staff area will feature a meeting room, staff shower room, WC facilities, and a plant room to support the upgraded heating system that will serve the entire building
Service provided: Planning / Building Regulations / full service from RIBA stages 1-7
Local Authority: London Borough of Croydon
Main Contractor: LMC Drylining Ltd
Engineer: Bridges Pound
